领域&案例
___
业务范围
案例
——
BIM咨询
高速
BIM设计工具
水利
IoT系统集成
水电
BIM/GIS数字孪生
城市交通
铁路铁道
发电/输变电
-
—
产品中心
———
BIM设计工具类
协同及交付平台
施工管理及运维
———
工具集
协同管理平台
施工管理平台
———
三维配筋系统
数字化移交平台
运维管理平台
———
电缆自动寻址建模工具
轻量化工具及组件
Aglos 5D开发平台
———
三维地质系统
元件库
疏浚与场地工具
———
交通安全设施BIM设计系统
征地与移民征拆系统
———
盾构管片设计软件
———
三维埋地管道设计系统
资讯中心
关于华创
免 费 试 用
网站首页
>>
产品中心
>>
BIM设计工具类
>>
交通安全设施BIM设计系统
交通安全设施BIM设计系统
——
主要服务于交通行业公路以及市政道路的交安BIM设计业务,解决交通行业设计人员在三维平台上的正向设计与多专业协同的诉求,实现在Bentley三维设计平台(OpenRoads Designer) 中完成标志、标线、信号灯、护栏等交通安全设施正向设计,并自动生成带有非几何信息的交安设施设计模型,同时输出交安设施设计方案的二维、三维图纸及工程量。
系统价值
01 可快速实现公路及市政道路相关专业的BIM正向设计以及模型和图表交付,消除了被动翻模的人力资源成本,大幅提升BIM设计效率和质量。
02 通过设计平台与BIM标准的结合,同时配合模型轻量化及数字化管控平台,实现BIM正向设计与数字化交付。
成果内容
出平面图纸
标志设置一览表
标志数量表
护栏设置一览表
轮廓设置一览表
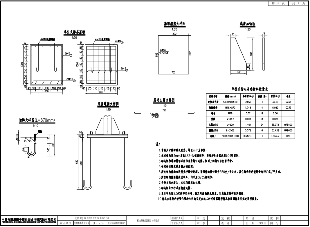
标志结构图
标志结构图
护栏结构图
护栏结构图
功能介绍
交安设施元件库
交安设施元件库提供参数化设计工具,创建标志版面、标志结构(含基础)、标线、护栏、轮廓标等元件;通过模型交互,创建标志组合标志版面与结构)、信号灯等交安设施单体;为交安设施二维和三维设计提供基础元件库。
手动布设交安设施
手动布设交安设施是通过选择杆件元件库和交通版面元件库进行组合,不同尺寸大小的的版面能够自适应标准杆件模型,提升程序的人性化设计,通过选择标志模板,输入标志间距,通过平面视图中拾取点或对话框中输入布设标志布设完成后可拖动夹点合理布设交安设施在平面中的位置。
自动布设交安设施
自动布设交安设施是通过自动布设规则的管理实现交安设施的自动创建,通过将既有规则规范导入到交安系统中,系统加载元件库后自动完成的功能,该功能可实现自动布设规则的修改、保存、导出与导入、重复利用;通过自动布设规则定义,读取项目设计信息,计算标志位置,并生成标志;读取项目设计信息,分析数据,计算标线位置,并生成标线等功能。
二维成果输出
二维成果的输出主要包括交安设施常见二维设计图,标志一览表标线一览表、护栏设置一览表、轮廓标设置一览表等。系统可以自动配置表格,将成果按照规范要求的样式进行输出。
协同设计
将交安设施方案与平面线形、高程等关联,路线方案局部调整后,交安设施布设方案进行协同响应;智能识别模型中同类型元件,实现快速替换的。